Модуль мониторинга адресный AW-D111 применяется в системах пожарной сигнализации и предназначен для контроля состояния пожарного клапана, а также подключения не адресных пожарных извещателей.
Информационный обмен и питание осуществляется по проводной линии связи. Модуль имеет дополнительный выход питания (AUX) 24 В.
Технические характеристики:
| Наименование характеристики | Значение |
| Напряжение источника питания в линии связи, В | от 18 до 28 |
| Ток потребления в дежурном режиме, не более, мА | 5 |
| Ток потребления в тревожном режиме, не более, мА | 200 |
| Коммутируемый ток при 24 В, максимальный, мА | 200 |
| Количество релейных выходов | 1 |
| Диапазон рабочих температур, °С | От -10 до +50 |
| Относительная влажность воздуха, %, при +25 °C | до 95 |
| Масса модуля, не более, кг | 0,32 |
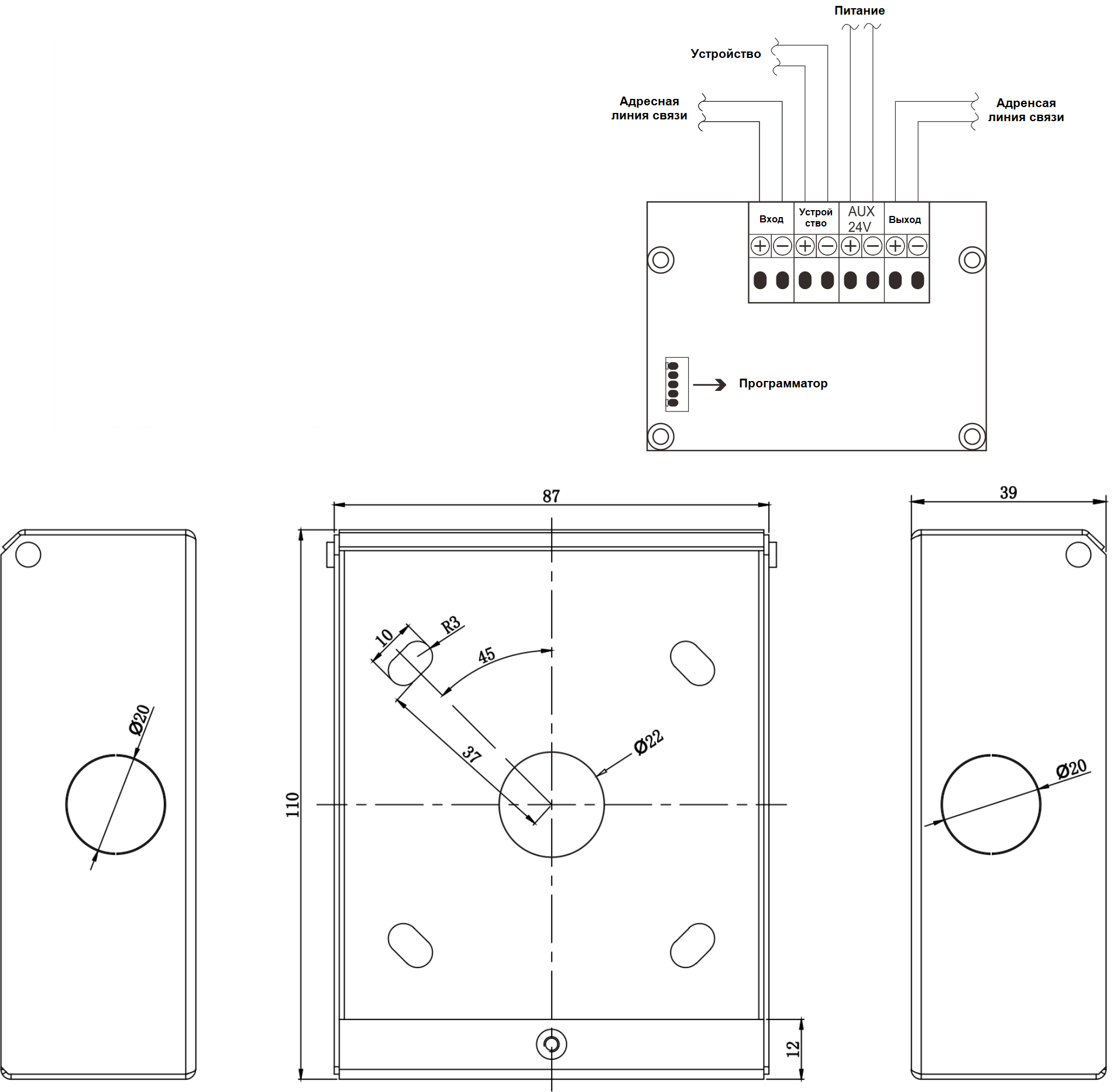
| Габаритные размеры | не более 110x87х39 |
| Время непрерывной работы модуля | круглосуточно |
| Средняя наработка модуля на отказ в дежурном режиме работы, не менее, ч |
80000 |
| Вероятность безотказной работы за 1000 ч | 0,98 |
| Средний срок службы модуля, лет | 10 |
AW-D111 Карточка продукта En
AW-D111 Карточка продукта
AW-D111 Руководство пользователя
AW-D111 Сертификат
AW-D111 Техническое описание
AW-D111 Схема подключения
