Адресная метка AW-D110 применяется в системах пожарной сигнализации и предназначена для подключения неадресных устройств и передачи извещений в адресные панели управления пожарной сигнализацией Asenware.
Технические характеристики:
| Наименование характеристики | Значение |
| Напряжение источника питания в линии связи, В | от 18 до 28 |
| Ток потребления в дежурном режиме, не более, мА | 5 |
| Ток потребления в тревожном режиме, не более, мА | 25 |
| Диапазон рабочих температур, °С | От -10 до +50 |
| Относительная влажность воздуха, %, при +25 °C | до 95 |
| Масса модуля, не более, кг | 0,33 |
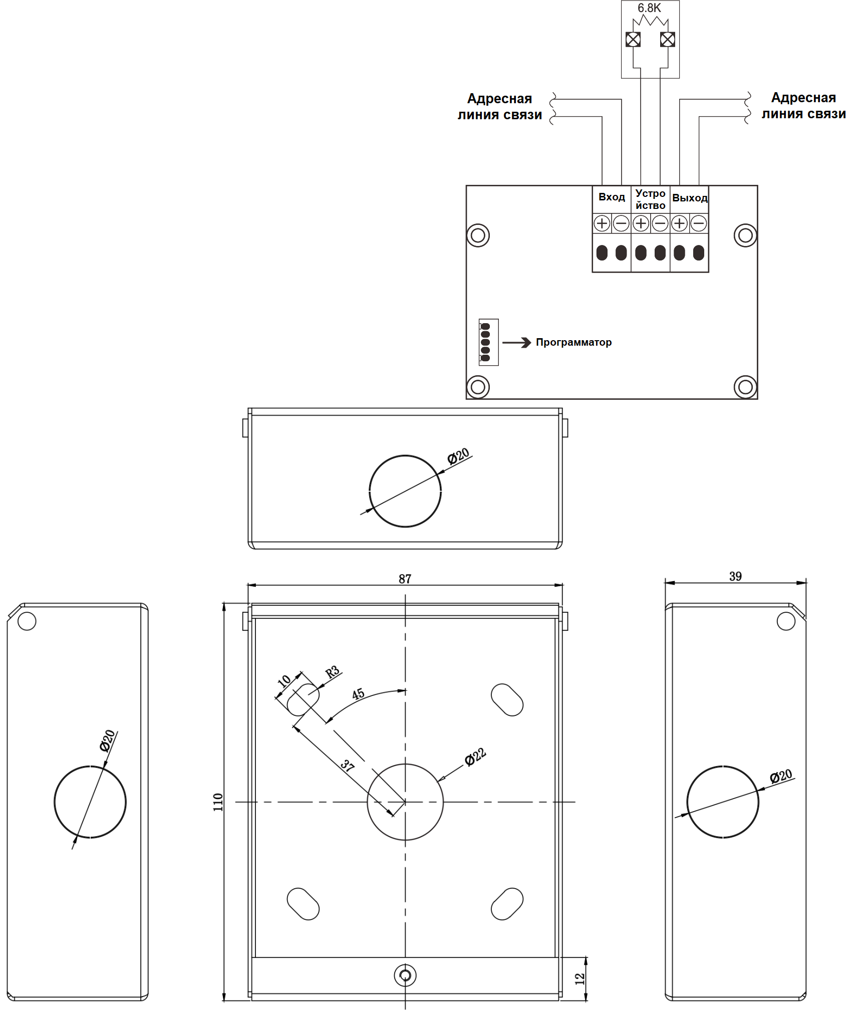
| Габаритные размеры | не более 110x87х39 |
| Время непрерывной работы модуля | круглосуточно |
| Средняя наработка модуля на отказ в дежурном режиме работы, не менее, ч |
80000 |
| Вероятность безотказной работы за 1000 ч | 0,98 |
| Средний срок службы модуля, лет | 10 |
AW-D110 Карточка продукта En
AW-D110 Карточка продукта
AW-D110 Руководство пользователя
AW-D110 Сертификат
AW-D110 Техническое описание
AW-D110 Схема подключения
